09/08/2023
Infraestructura productiva y habitacional en plataformas flotantes de hormigón, sobre puertos de ciudades europeas y del mundo con el fin de generar polos productivos adaptables a las economías locales y explotarlas al mismo tiempo que aportan una solución a la problemática de la inmigración y recepción de refugiados en un sistema de reciprocidad y beneficios mutuos. La propuesta posee la capacidad y flexibilidad de consolidarse y adaptarse a las condiciones de la problemática vigente.
En una reinterpretación de aquello que podríamos definir tan universal como variado, tan importante que para numerosas culturas no ha habido otro en realidad, aquel vacío contenido que fue vital para tantas arquitecturas. El proyecto rescata lo esencial, concibiendo un claustro que configura el gran patio como corazón de UNA escuela.
[Equipo de trabajo Arq. María Laura Serra + Arq. Gonzalo A. Vargas.]
[Equipo de trabajo Arq. Maria Laura Serra + Arq. Gonzalo A. Vargas.]
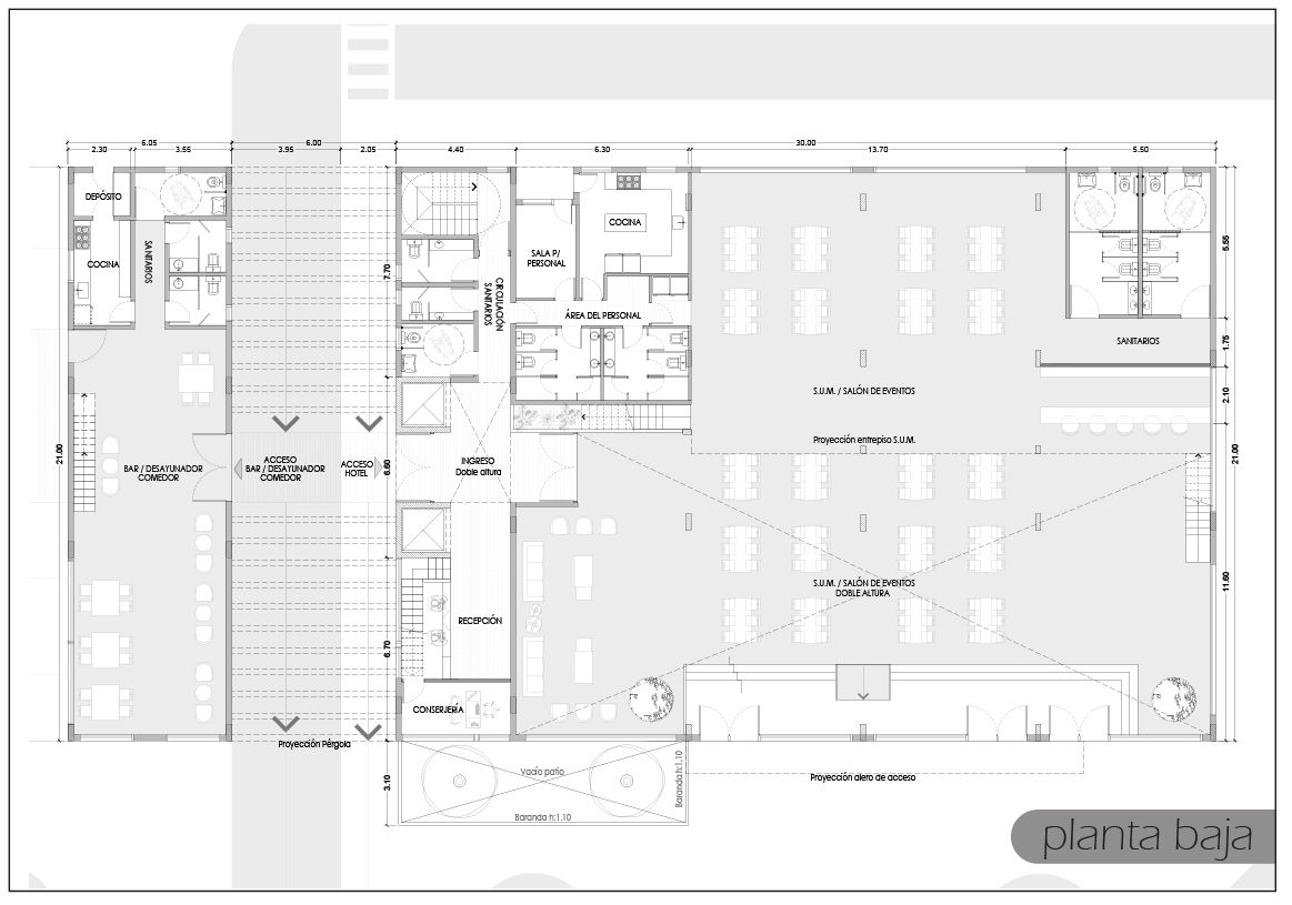
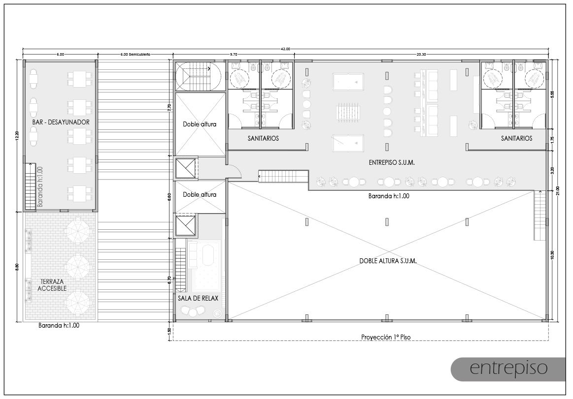
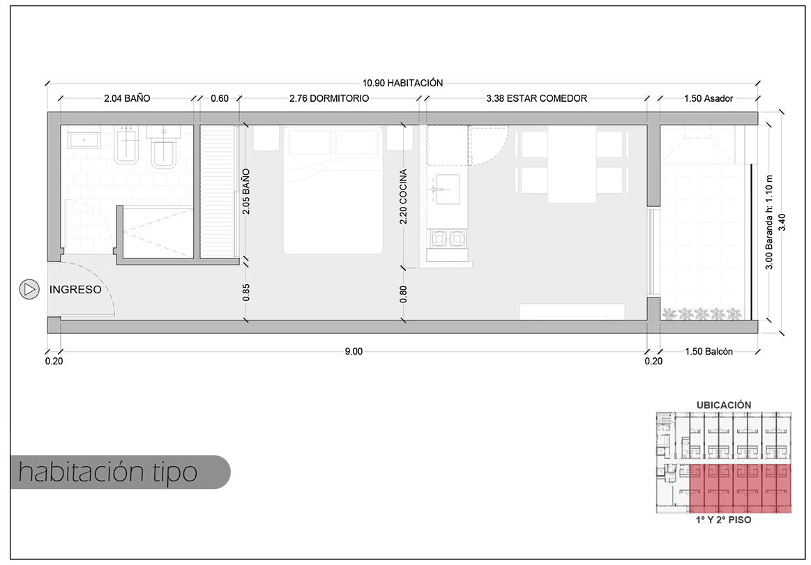
El proyecto hotelero se ubica en la ciudad de Villa Carlos Paz a orillas de uno de los principales balnearios locales y entorno a una antigua casona del lugar, reconocida y valorada por los vecinos. La propuesta busca recuperar el sitio y a la vez generar un nuevo concepto hotelero que acompaña al crecimiento actual de la ciudad.
![TESIS DE GRADO [Equipo de trabajo Arq. Maria Laura Serra + Arq. Gonzalo A. Vargas.]](https://images.cdn-files-a.com/uploads/7619961/2000_640d214bb2dd8.jpg)
![TESIS DE GRADO [Equipo de trabajo Arq. Maria Laura Serra + Arq. Gonzalo A. Vargas.]](https://images.cdn-files-a.com/uploads/7619961/2000_640d234c469d6.jpg)
![TESIS DE GRADO [Equipo de trabajo Arq. Maria Laura Serra + Arq. Gonzalo A. Vargas.]](https://images.cdn-files-a.com/uploads/7619961/2000_640d23c8b1e07.jpg)
![TESIS DE GRADO [Equipo de trabajo Arq. Maria Laura Serra + Arq. Gonzalo A. Vargas.]](https://images.cdn-files-a.com/uploads/7619961/2000_640d2342dca7e.jpg)
![TESIS DE GRADO [Equipo de trabajo Arq. Maria Laura Serra + Arq. Gonzalo A. Vargas.]](https://images.cdn-files-a.com/uploads/7619961/2000_64106854aad8a.jpg)
![TESIS DE GRADO [Equipo de trabajo Arq. Maria Laura Serra + Arq. Gonzalo A. Vargas.]](https://images.cdn-files-a.com/uploads/7619961/2000_641068d122e23.jpg)
![TESIS DE GRADO [Equipo de trabajo Arq. Maria Laura Serra + Arq. Gonzalo A. Vargas.]](https://images.cdn-files-a.com/uploads/7619961/2000_6410694293545.jpg)
![TESIS DE GRADO [Equipo de trabajo Arq. Maria Laura Serra + Arq. Gonzalo A. Vargas.]](https://images.cdn-files-a.com/uploads/7619961/2000_64106942cf79c.jpg)





![UNA ESCUELA [Equipo de trabajo Arq. María Laura Serra + Arq. Gonzalo A. Vargas.]](https://images.cdn-files-a.com/uploads/7619961/2000_641079dfb9f6a.jpg)
![UNA ESCUELA [Equipo de trabajo Arq. María Laura Serra + Arq. Gonzalo A. Vargas.]](https://images.cdn-files-a.com/uploads/7619961/2000_64107a3f8cde2.jpg)
![UNA ESCUELA [Equipo de trabajo Arq. María Laura Serra + Arq. Gonzalo A. Vargas.]](https://images.cdn-files-a.com/uploads/7619961/2000_64107a8973b73.jpg)
![UNA ESCUELA [Equipo de trabajo Arq. María Laura Serra + Arq. Gonzalo A. Vargas.]](https://images.cdn-files-a.com/uploads/7619961/2000_640d27980d6ea.jpg)
![UNA ESCUELA [Equipo de trabajo Arq. María Laura Serra + Arq. Gonzalo A. Vargas.]](https://images.cdn-files-a.com/uploads/7619961/2000_640d279a79a28.jpg)
![UNA ESCUELA [Equipo de trabajo Arq. María Laura Serra + Arq. Gonzalo A. Vargas.]](https://images.cdn-files-a.com/uploads/7619961/2000_640d279bc7512.jpg)
![UNA ESCUELA [Equipo de trabajo Arq. María Laura Serra + Arq. Gonzalo A. Vargas.]](https://images.cdn-files-a.com/uploads/7619961/2000_640d2eb4edca7.jpg)
![UNA ESCUELA [Equipo de trabajo Arq. María Laura Serra + Arq. Gonzalo A. Vargas.]](https://images.cdn-files-a.com/uploads/7619961/2000_640d28210559d.jpg)
![UNA ESCUELA [Equipo de trabajo Arq. María Laura Serra + Arq. Gonzalo A. Vargas.]](https://images.cdn-files-a.com/uploads/7619961/2000_640d265444a39.jpg)
![UNA ESCUELA [Equipo de trabajo Arq. María Laura Serra + Arq. Gonzalo A. Vargas.]](https://images.cdn-files-a.com/uploads/7619961/2000_640d29d09eea7.jpg)
![UNA ESCUELA [Equipo de trabajo Arq. María Laura Serra + Arq. Gonzalo A. Vargas.]](https://images.cdn-files-a.com/uploads/7619961/2000_640d2a8a053c6.jpg)






























